Hírek
2020. Október 03. 00:00, szombat | Helyi
Megosztja a helyieket az új beruházás Bezenyén
Több mint száz telkes lakóparkot alakítanának ki a bezenyei mezőgazdasági termelőszövetkezet területén. Júliusban döntött erről a képviselőtestület, melyet 4-3 arányban szavaztak meg a képviselők.
Július végén négy igennel és három nemmel szavazta meg Bezenye képviselőtestülete, hogy a mezőgazdasági termelőszövetkezet helyén több mint 100 lakótelket alakítanának ki. Erről közmeghallgatást is tartottak szeptember közepén, ahol érveket és ellenérveket is meghallgathattak a lakók.
Márkus Erika polgármester nem támogatja a beruházást, ugyanis szerinte főként szlovák állampolgárok vásárolnák meg a lakásokat, így pedig a nemzetiségi arány felborulna.A polgármester szerint az infrastruktúra sem megfelelő egy ekkora volumenű építkezéshez.
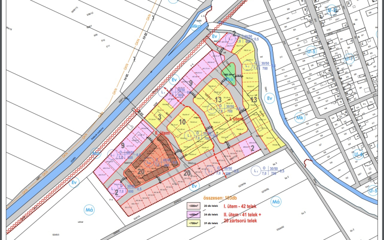
Összesen 103 telket alakítanának ki. Az első ütemben negyvenkettőt, a másodikban negyvenegyet és további húsz zártsorú telket, melyek méretei 500 és 700 négyzetméter közöttiek.
A lakóparkot megszavazó képviselők szerint elöregedőben van a bezenyei lakosság, kevés a gyerek, az új házak pedig szerintük idevonzanák a fiatalokat. A beruházást kezdeményező Agro-Lime Kft. arról biztosította a lakókat, hogykizárólag családi házakat építenének, társasházakat és ikerházakat nem. A beruházó hat hónap elővásárlási időszakot is biztosítana a bezenyeieknek és leszármazottaiknak, valamint a falusi CSOK-ot is igénybe lehetne majd venni.Jelenleg a településrendezési terv módosításának előkészítése zajlik és bár a képviselőtestület megszavazta a lakópark építést, helyi népszavazás dönthet a beruházás sorsáról.
A Mosonmagyaróvári Városi Televízió összefoglalója:
Ezek érdekelhetnek még
2026. Január 06. 07:13, kedd | Helyi
Havazás - Az ország szinte teljes területén intenzíven havazik
Az ország szinte teljes területén intenzíven havazik hétfőn éjjel, az érintett területeken a látási viszonyok korlátozottak, amely a forgalom jelentős lassulásával jár - olvasható az Útinform honlapján.
2025. December 23. 12:26, kedd | Helyi
Közösségi tapasztalatból lett magyar termékfejlesztés a pajzsmirigybetegségek támogatására
A BLAN Synergy rendszerszintű megközelítéssel, természetes módon egészíti ki a gyógyszeres kezelést
2026. Január 30. 08:00, péntek | Életmód
Szép új világ: Humanoid robotok gyártásába kezd a Tesla
Két autómodell gyártását is leállítja a Tesla, hogy azok gyártosorait átalakítva humanoid robotokat gyártson. Évente akár 1 millió Optimus robot készülhet.
2026. Január 30. 07:07, péntek | Kék hírek
Kábítószer és alkohol hatása alatt állt a Romániában súlyos balesetet szenvedett görög kisbusz vezetője
Kábítószer és alkohol hatása alatt volt annak a Romániában balesetet szenvedett görög kisbusznak a sofőrje, amelyben hét ember vesztette életét - közölte csütörtökön az ügyben eljáró lugosi vádhatóság szóvivője.
