Hírek
2020. Október 03. 00:00, szombat | Helyi
Megosztja a helyieket az új beruházás Bezenyén
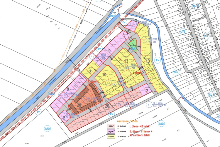
Több mint száz telkes lakóparkot alakítanának ki a bezenyei mezőgazdasági termelőszövetkezet területén. Júliusban döntött erről a képviselőtestület, melyet 4-3 arányban szavaztak meg a képviselők.
